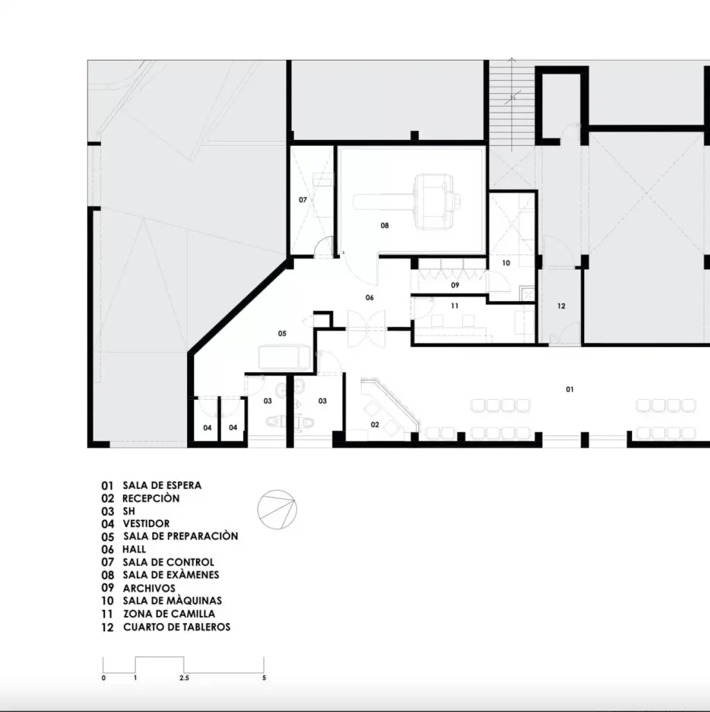
La Cooperativa de Ahorro y Crédito San Cristóbal de Huamanga, adquirió el primer resonador magnético privado de la región de Ayacucho, para esto requirió de remodelar el local administrativo adyacente a su actual centro médico.
Como consultores elaboramos del expediente técnico completo, que incluyó el desarrollo de arquitectura, las especialidades de ingeniería y la evaluación y el diagnóstico para el diseño estructural; para luego pasar a la ejecución de la obra civil.


