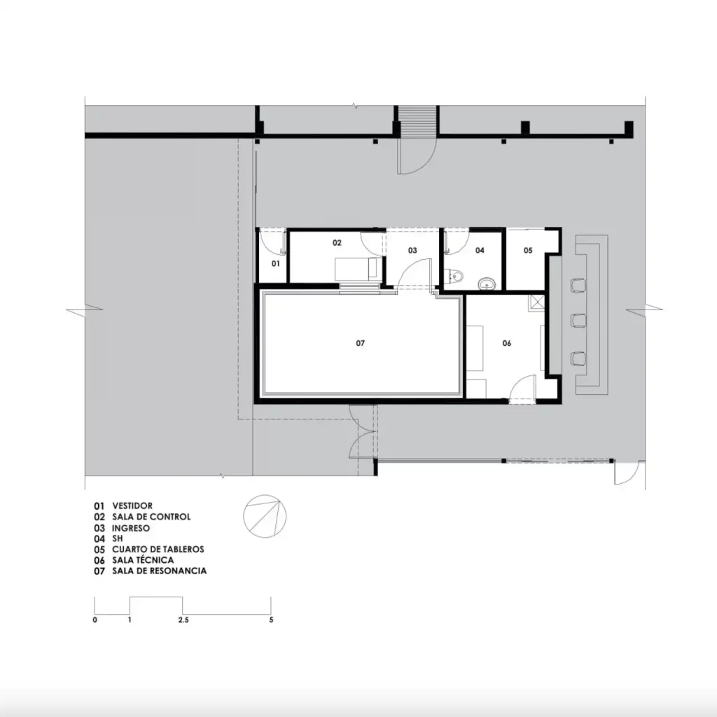
El cliente decidió ampliar su oferta médica mediante la adquisición de un nuevo equipo de resonancia magnética.
Nuestro servicio incluyó la evaluación y el diagnóstico necesario para diseñar y construir los elementos estructurales horizontales y verticales que dan soporte al peso del equipo médico y el blindaje electromagnético requerido por el fabricante. Además, se implementaron los acabados y las instalaciones eléctricas.


